






Каркасный модульный дом — Компактность. Эстетика. Энергоэффективность.
Это готовое решение для постоянного проживания или загородного отдыха. Дом спроектирован по принципу «разумного минимализма»: - Функциональное зонирование без лишних коридоров. - Полноценное жилое пространство на небольшом участке. - Возможность размещения на узких или сложных участках. - Готовность к заселению через 2-3 месяца после начала производства.
Материал стен:Деревянный каркас с минераловатным утеплением.
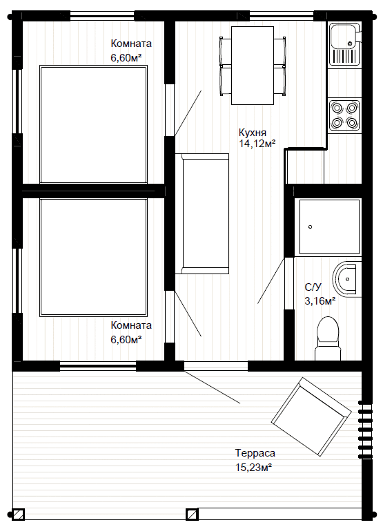
Количество спален: 2, что идеально для семьи из 2-4 **человек.
**Кровля: двухскатная, придающая архитектуре лаконичный современный облик.
Фасады: большие окна, обеспечивающие обилие естественного света, и лаконичная отделка в скандинавском стиле.
Гостиная: объединённая с кухней зона для досуга и общения.
Энергоэффективные решения: дом соответствует современным стандартам энергоэффективности.
В комплектацию "Стандарт" входит:
Фундамент на винтовых сваях Д89,
Основание пола с утеплителем 200 мм и сеткой от грызунов,
Утепленный каркас 150 мм утеплителем высокой плотности,
Утепленная кровля 200 мм с покрытием профлистом,
Детали каркаса и отделки из доски камерной сушки,
Окна, двери уличные ПВХ с наружней ламинацией,
Отделка фасада планкеном из сосны,
Прокладка сетей ЭЛ, ВК в доме,
Внутренняя отделка: имитация бруса, ламинат,
Двери межкомнатные,
Обогрев эл. конвекторы, теплый пол,
Бойлер, душ, унитаз, раковина
Преимущества для покупателя:
- 💰 Фиксированная цена: Стоимость не меняется в процессе стройки (нет сметных неожиданностей).
- ⏱ Скорость: Заселение через 2-3 месяца, а не год.
- 🌳 Экологичность: Дышащее дерево, безопасные материалы.
- 🧱 Без усадки: Можно въезжать сразу после монтажа (в отличие от бруса/бревна).
- 🚛 Мобильность: При необходимости дом можно демонтировать и перевезти на новый участок.
Дом «Горизонт Классик» — это идеальный баланс цены, комфорта и современных технологий. Мы берем на себя все: от производства стропил до установки розеток.
Заполните форму