






Проект индивидуального одноэтажного жилого дома из газобетонных блоков — это воплощение современного подхода к уюту, практичности и энергоэффективности.
Общее описание Дом выполнен в строгом стиле с акцентом на природные оттенки и простые геометрические формы фасадов. Использование газобетонных блоков обеспечивает отличную тепло- и шумоизоляцию, что делает этот дом комфортным для проживания в любое время года. Благодаря рационально продуманной планировке дом идеально подойдёт для небольшой семьи или пары, ценящей гармонию и функциональность.
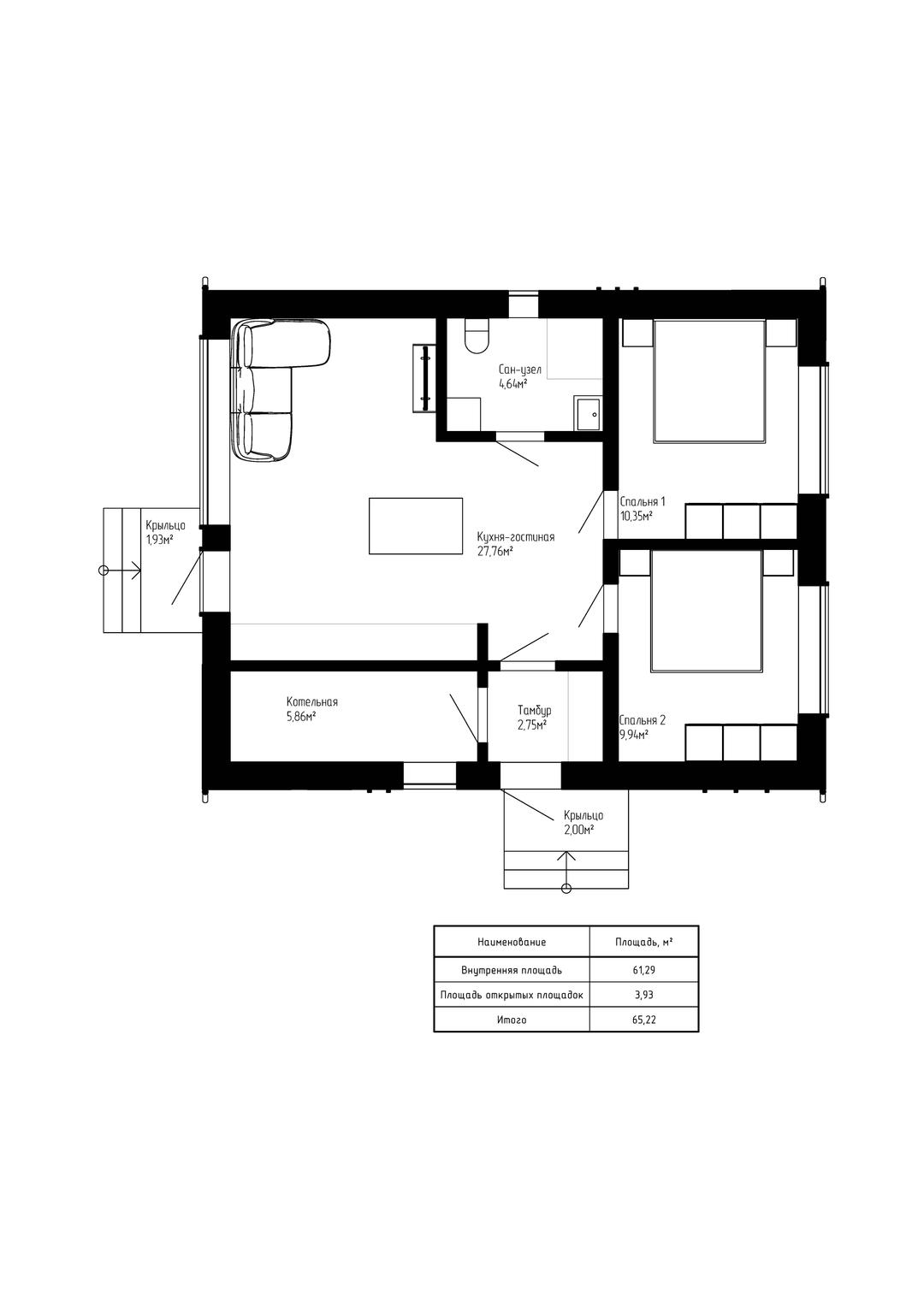
Общая площадь: 62 кв. компактный, оптимизированный под повседневные нужды пространства.
Материал стен: газобетонные блоки, обеспечивающие долговечность и низкие эксплуатационные затраты.
Количество спален: 2, что идеально для семьи из 2-4 человек.
Кровля: двухскатная, придающая архитектуре лаконичный современный облик.
Фасады: большие окна, обеспечивающие обилие естественного света, и лаконичная отделка в скандинавском стиле.
Просторная гостиная: объединённая с кухней зона для досуга и общения.
Энергоэффективные решения: дом соответствует современным стандартам минимального энергопотребления. Планировка Дом отличается функциональной организацией пространства. Уютная гостиная с панорамными окнами объединена с обеденной зоной. Две спальни находятся в удалении от активных зон, обеспечивая максимальную приватность. Также предусмотрено компактное техническое помещение и санузел.
Преимущества проекта: Лаконичный дизайн, который органично впишется как в городской, так и в загородной ландшафт. Использование современных материалов и технологий гарантирует долговечность конструкции. Рациональная планировка, которая позволяет с комфортом использовать каждый квадратный метр пространства. Данный проект идеально подойдёт для строительства на небольших участках, обеспечивая гармонию уединения и удобства. Вы можете адаптировать проект под ваши индивидуальные нужды, реализуя свою мечту о современном и функциональном доме!
В комплектацию "Теплый контур" входит: Фундамент монолитная ж/б плита 300 мм ,Стены газобетонные блоки: 400 мм,Утеплитель минераловатный фасада 100 мм,Клееные несущие конструкции (балки, опорные столбы),Кровля с покрытием гибкой черепицей, Утеплитель минераловатный потолка или кровли по проекту 250 мм,Подшивка карнизов металлическим софитом , Монтаж водосточной системы Окна и наружние двери ПВХ: тройное остекление 70 мм
Планировка:Крыльцо,тамбур,котельная, с/у, кухня-гостиная,2 спальни.
Стоимость: Теплый контур: 3 850 000 р. Под ключ: 5 145 000р.
Заполните форму