




Представляем вашему вниманию наш проект индивидуального жилого дома, выполненного по каркасной технологии. Этот двухэтажный дом станет идеальным местом для комфортной жизни вашей семьи, сочетающим современные архитектурные решения и высокий уровень функциональности.
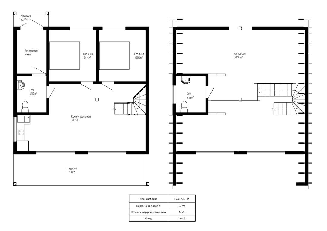
Дом площадью 100,73 м² имеет продуманную планировку и включает три светлые спальни, одну на каждом этаже, что создаст уютную атмосферу для каждого члена семьи. На первом этаже расположены просторная кухня-гостиная (31,92 м²) и терраса (13,01 м²), где можно проводить время на свежем air. Также здесь есть отдельные туалеты и кладовая для ваших удобств.
На втором этаже вас ждет антрисоль (30,99 м²) и две спальни (по 10,14 м² и 10,06 м²), каждая из которых ориентирована на создание уюта и уединения. Второй уровень также включает в себя отдельный санузел для удобства.
Фасады дома оформлены в современном стиле с большими окнами, что обеспечивает максимальное количество натурального света, создавая ощущение простора и комфорта. Легкие линии и гармония с окружающей природой делают этот дом идеальным выбором для тех, кто ценит эстетичность и уют.
Наша компания гарантирует высокое качество материалов и надежное выполнение всех строительных работ, что позволит вам наслаждаться комфортом нового жилья на долгие годы. Если вы ищете идеальный дом для своей семьи, наш каркасный проект станет отличным решением.
Свяжитесь с нами для получения дополнительной информации и консультации по вашему будущему дому мечты!
В комплектацию "Теплый контур" входит: Фундамент ж/б сваи забивные Каркасный домокомплект Клееные несущие конструкции (балки, опорные столбы) Кровля с покрытием профилированным листом или металлочерепицей по проекту Утеплитель минераловатный пола и потолка 250 мм Утеплитель минераловатный каркасных стен 200 мм Подшивка карнизов софитом Пластиковая водосточная система Декоративная отделка снаружи по проекту: (дерево, профлист) Окна и наружние двери ПВХ: тройное остекление 70 мм
Стоимость: Тёплый контур: 5 225 000 р. Под ключ:7 060 900 р.
Заполните форму