





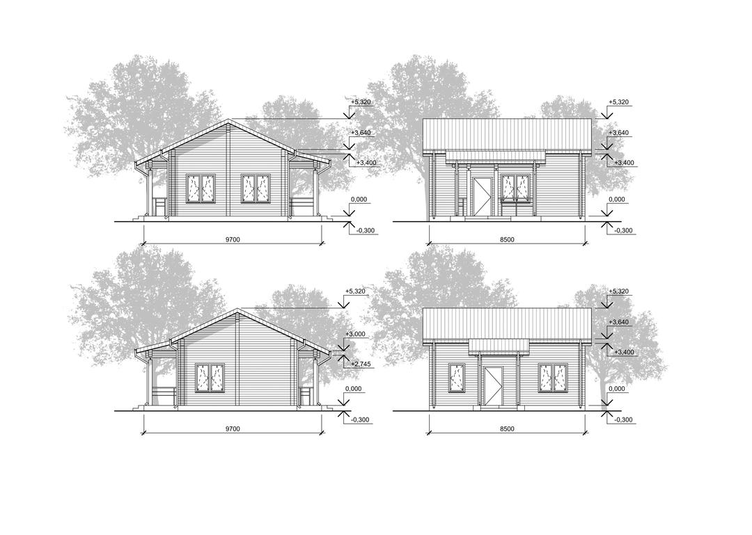
В доме "БК45" можно не только провести время с семьей, но и принять гостей благодаря наличию отдельной спальни и просторной кухни-гостиной с выходом на террасу. Правильное планирование помещений обеспечивает комфорт и эффективное использование пространства. Большие панорамные окна придают помещению светлость и уют. Этот дом идеально подходит для тех, кто желает воплотить свои дизайнерские задумки при ремонте.
Планировка: Гостиная, спальня, холл, с/у, тамбур, крыльцо, терраса.
Характеристики: Размеры бруса 200х140 Площадь общая 56 м2, Площадь внутренних помещений 42,5 м2
Стоимость: Теплый контур 4 730 000 р. Под ключ 6 280 000 р.
Площадь: до 100 м² Технология строения: Клееный брус Этажность: 1 этаж
Заполните форму